
Villa Tacconi

Masseria Demma
Trulli Villa Gloria
Categoria
TRULLI
Anno del Progetto
2010
Area
245m2
Localizzazione
Fasano
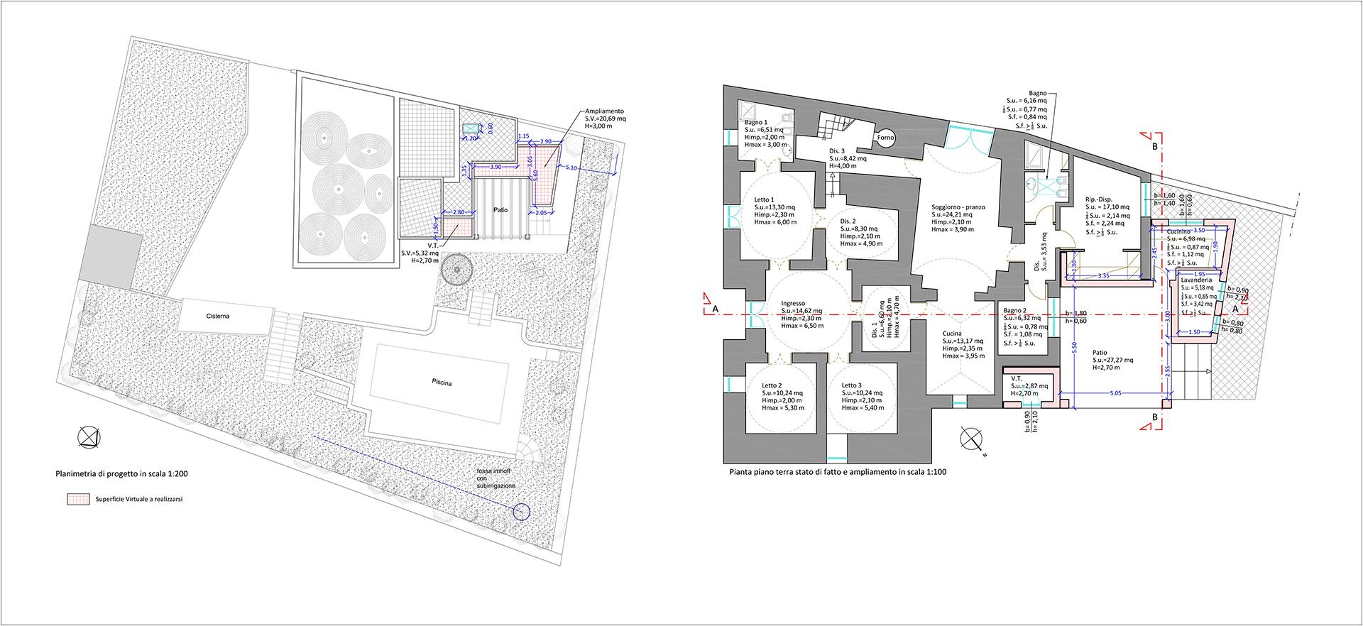
Recupero di un complesso di trulli in posizione dominante.
Un intervento che valorizza un’architettura iconica del paesaggio pugliese.
Trulli Villa Gloria si inserisce nel paesaggio collinare della Selva di Fasano, in una posizione panoramica che amplifica il rapporto tra architettura e territorio.
Il progetto riguarda la riqualificazione di un complesso storico del XIX secolo, intervenendo su un patrimonio costruito di grande valore tipologico e paesaggistico.
È stato apportato un intervento rispettoso della tradizione costruttiva, preservando la configurazione originaria dei trulli e migliorando la qualità degli spazi attraverso interventi puntuali e coerenti.
Il progetto include: il recupero degli ambienti esistenti, la valorizzazione delle aree esterne e un’integrazione attenta con il paesaggio circostante, mantenendo un equilibrio tra conservazione e fruibilità.
Trulli Villa Gloria rappresenta un intervento esemplare sul patrimonio rurale pugliese, in cui autenticità e qualità architettonica convivono in modo naturale. Un progetto che conserva l’identità del luogo, rendendola pienamente abitabile nel presente.














